Modèle AYOUS
- Accueil
- Détails
- Réservation
brochures
Simulation
2% Off
Premiers acquéreurs

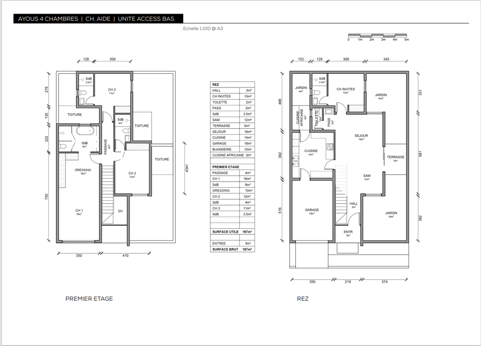
CARACTÉRISTIQUES DU MODÈLE AYOUS
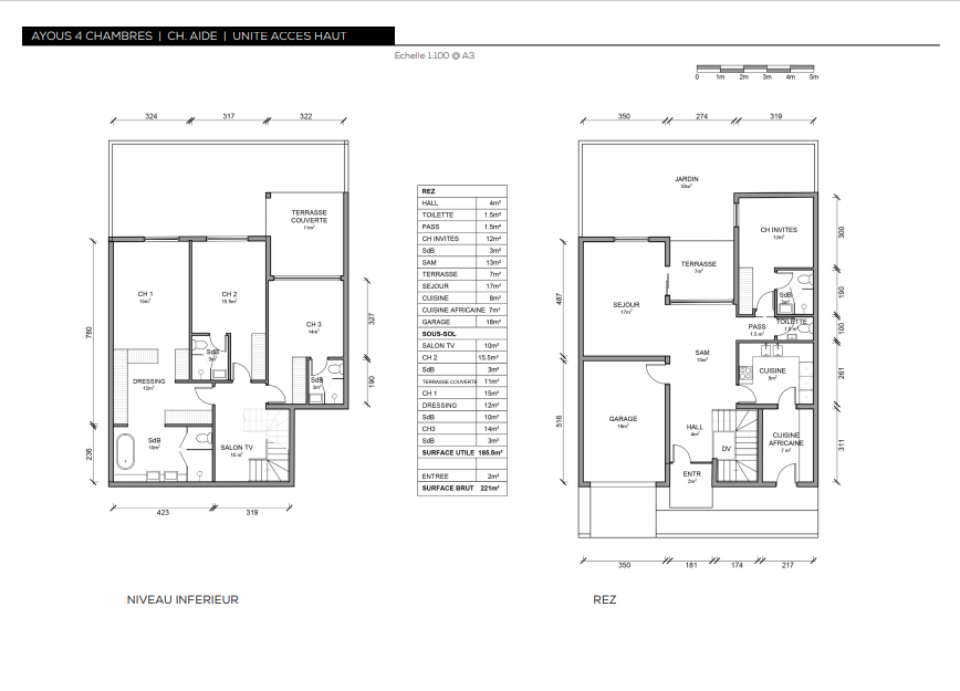
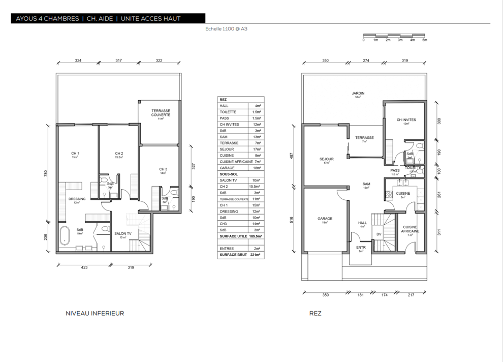
Le Duplex AYOUS, bâti sur une superficie moyenne 167 m2, est une villa duplex composée de 3 à 4 chambres. Il offre des variantes 4 chambres dont 1 chambre d’invités ou 3 chambres. Il peut comporter une cuisine moderne et une cuisine africaine. L’AYOUS offre des variantes suivantes :
- 3 chambres
- 3 chambres + chambre de service
- 4 chambres
- 4 chambres + salon plus grand
- 4 chambres + chambre de service
- 4 chambres + salon plus grand + chambre de service
- 1 terrasse
- 1 parking privé pour 1 voiture
- 1 parking public pour visiteur
- Voir les autres caractéristiques du modèle
CARACTERISTIQUES PROPRES AU PROGRAMME
- Totalement fermé, avec en façade avant du programme, un portail en fer forgé, ouvrant électriquement ;
- Une guerite pour tout le programme ;
- Système de vidéosurveillance, idéalement connecté à une société de gardiennage
- ou à la police
- Utilisation de candélabres extérieurs led ;
- Espaces verts aménagés pour toute les zones à verdures ;
- Espaces de jeux aménagés ;
- Bitumes pour tout le programme, et pavés pour zones de circulation piétonne
fiche
| Type | Villa duplex |
| Pièces | 5 |
| Prix Maison Clé en main | À partir de 65 000 000 F CFA TTC |
| Prix Maison en Gros oeuvre | À partir de 36 000 000 F CFA TTC |
| Variantes | 3 ou 4 chambres |
| Réservation | Dépôt de 10% à 20% du prix de vente TTC |
| Remarques | Le paiement du solde peut se faire en 3 ou 4 tranches |
modalités
La vente est faite selon la formule de Vente en État Futur d’Achèvement (VEFA). L’acquéreur a 2 possibilités de financement de son acquisition : Obtention d’un financement bancaire auprès d’une institution financière au Cameroun (Banque, Crédit foncier du Cameroun, etc.); Financement personnel selon la progression de la construction de son logement.
Le paiement du prix prévisionnel de vente du logement se fera par versements échelonnés à mesure de l’avancement des travaux et sur présentation de la facture par le Réservant. Les parties conviennent que le réservataire devra transmettre des copies de tous les bordereaux justifiant ses différents versements au Réservant.
Toutefois, les différents versements ne peuvent dépasser les seuils ci-après :
- 10% du prix prévisionnel à la signature du contrat de réservation ;
- 10% du prix prévisionnel à l’achèvement de la fondation soit 20% de seuil de paiement ;
- 40% du prix prévisionnel à la mise hors d’eau (Gros œuvre et Couverture) soit 60% de seuil de paiement ;
- 30% du prix prévisionnel à l’achèvement des travaux de finitions soit 90% dde seuil de paiement ;
- Le solde de 10% à la remise des clés et dès la signature du procès-verbal de réception provisoire soit 100% de seuil de paiement.
Ledit solde sera toutefois consigné sur un compte séquestre, pour garantir toute la contestation de la conformité du logement aux prescriptions contractuelles. Les Parties conviennent et qu’aucun versement, autre que le dépôt de garantie, ne pourra être effectué avant la signature du contrat de vente.
La durée prévisionnelle de réalisation de votre logement ou maison est de 24 à 36 mois à partir de la date de réception du premier versement de 10% du prix de vente HT. En principe, le programme est censé être livré et terminé au courant de 2025. Tout acquéreur reçoit au moment de la signature de contrat de réservation et du paiement de 10% de mise de fonds initial un échéancier de construction et de versement de fonds.
Concrètement, la construction étant faite en mode VEFA et le logement étant reparti en lots (fondation, élévation des murs rez-de-chaussée, dalle, élévation de murs premier étages, toiture, finitions, etc.), le promoteur construit par lot et le client paie après la réalisation de chaque lot.
Tout acquéreur reçoit 2 documents au moment du versement de la mise de fonds initiale de 10% du prix de vente HT :
- Le contrat de réservation – Vente en État Futur d’Achèvement (VEFA) par le promoteur au profit de l’acquéreur;
- Le cahier de charges qui stipule les devoirs et engagements liés à la vie en copropriété.
Financememt
ATINA IMMOBILIER CAMEROUN négociera un partenarait avec le Crédit Foncier du Cameroun (CFC) en vue de faciliter les prêts acquéreurs pour la diaspora camerounaise.
PIÈCES EXIGIBLES POUR LES DOSSIERS DE PRETS FONCIER CLASSIQUE DES CLIENTS DE LA DIASPORA
Dans le souci de mitiger le risque élevé encouru par le CFC en raison de l’instabilité professionnelle de certains clients de la diaspora, et afin de permettre une meilleure instruction de leurs dossiers, la liste des pièces constitutives de demande de prêts de cette catégorie de clients est arrêtée comme suit :
I.1 Pièces relatives à l’emprunteur
- Demande manuscrite datée et signée, adressée à Monsieur le Directeur Général du CFC indiquant le type, le montant, la durée et le différé du prêt sollicité, les coordonnées du notaire choisi, le numéro de téléphone, l’adresse mail et les adresses professionnelle et de résidence de l’emprunteur;
- Justificatif de paiement des frais d’instructions (voir grille tarifaire)
- Fiche d’informations client dûment signée;
- Deux photos 4×4;
- Photocopie de la Carte Nationale; d’Identité ou du Passeport Camerounais en cours de validité, assortie de 3 spécimens de signature au recto;
- Photocopie de la carte de séjour du pays de résidence en cours de validité;
- Photocopie de la carte de sécurité sociale (numéro de sécurité sociale en cours validité;
- Bureau de crédit ou fiche de crédit faisant ressortir le scoring/notation du client pour le cas du CANADA et des USA;
- Renseignements bancaires indiquant le taux d’endettement du client, pour le cas de l’EUROPE;
- Avis de cotisation ou d’imposition de l’année précédente;
- Note d’analyse de la viabilité de l’employeur à produire par le représentant;
- Attestation d’emploi indiquant la date d’embauche, la présence effective travail et le type de contrat (CDD ou CDI);
- Bulletins de paie des trois (03) derniers mois;
- Relevé du compte bancaire domiciliataire du salaire (les 06 derniers mois);
- Relevé d’Identité Bancaire;
- Photocopie de l’acte de mariage ou de tout autre document équivalent (le cas échéant) et de la pièce d’identité du conjoint Déclaration sur l’honneur de célibat, le cas échéant;
- Déclaration sur l’honneur de célibat, le cas échéant;
- Curriculum vitae de l’emprunteur;
- Attestation d’immatriculation et Numéro d’ldentifiant Unique (NIU).
I.2 Pièces relatives au projet
- Contrat de réservation de logement auprès du promoteur du Faubourg d’Ékali.
Les acquéreurs sont également libres de solliciter d’autres institutions financières pour obtenir leur accord de financement. Cet accord devra être présenté au promoteur et valider auprès de l’institution financière.
La dernière option de financement est de procéder au financement personnel de son acquisition selon un échéancier établi avec le promoteur. Cette option pourrait entrainer des pénalités en cas de non-respect des échéanciers de paiement voire même une résiliation du contrat si les retards de paiement sont répétitifs ou longs.
FAQ’s
1. Où est situé le site du Faubourg Ekali?
Le Faubourg Ekali est situé à quelques encablures de la ville de Yaoundé, plus précisément à 13 minutes en voiture à partir de l’aéroport Yaoundé Nsimalen sur l’axe Yaoundé-Mbalmayo. À partir de la poste centrale de Yaoundé, la durée moyenne pour atteindre le Faubourg d’Ékali en passant par l’échangeur d’Ahala Yaoundé et en passant par l’autoroute Yaoundé-Nsimalen est de 20 minutes.
2. Quel est le promoteur qui réalise le programme immobilier Faubourg d'Ékali
ATINA IMMMOBILIER CAMEROUN est le Promoteur du programme Faubourg d’Ékali. Dans le cadre de la réalisation des Faubourg d’Ekali, ATINA IMMOBILIER a signé des partenariats avec les entreprises internationales GLH (Afrique du Sud), BPM (Côte d’Ivoire), CABIS (Côte d’Ivoire), UJENGE (Rwanda), SEBOU PEINTURE (MAROC) et les entreprises nationales LEBES CONSTRUCTION, NIS, AFRIQUE HABITAT, ABRI-CONCEPT, LEODOR, ROUTD’AF, etc. Pour les travaux du gros œuvre, la plupart d’intervenants sur le terrain sont des entreprises locales. Pour les finitions, nous avons signé des partenariats avec des entreprises étrangères.
3. Quelles sont les différentes composantes du programme? immobilier Les Faubourg d'Ékali
Les composantes du programme immobilier les Faubourg d’Ékali sont les suivantes :
- Vente des terrains viabilisés
- Construction des maisons clés en main
- Construction des maisons en gros-œuvre
- Accompagnement pour l’obtention du titre foncier
- Accompagnement pour l’obtention du financement
- Construction du complexe scolaire
- Construction des espaces de sports et de loisirs
- Construction des espaces commerciaux
- Etc.
4. ATINA IMMOBILIER a -t-il tous les documents légaux nécessaires pour effectuer la vente sur plan ?
ATINA IMMMOBILIER, promoteur des Faubourgs de ÉKALI dispose de tous les documents juridiques nécessaires à la vente sur plan conformément aux lois camerounaises en vigueur :
- Le titre foncier assiette du projet;
- La convention de promotion immobilière avec les propriétaires terriens;
- Le Permis de lotir;
- L’agrément du MINHDU;
- La convention du contrôle technique
- Le contrat de vente sur plan par-devant le Notaire.
5. Comment puis-je réserver un logement dans ce programme?
La réservation d’un logement se fait en ligne en cliquant sur l’onglet situé à page accueil Réservation en ligne ou envoyant un courriel à info@faubourgekali.com ou en prenant un rendez vous en ligne (www.faubourgekali.com) ou encore en vous rendant dans notre bureau à Yaoundé ou à Montréal Canada. Un de nos agents commerciaux au Cameroun ou notre représentant à Montréal ou en Europe vous contactera immédiatement.
6. ATINA IMMMOBILIER a engagé ou réalisé la construction du logement témoin?
ATINA IMMMOBILIER est en train de finaliser le contrat de construction du logement témoin avec l’entreprise de construction LEBES qui a plus de 20 ans d’expérience dans le BTP. Les études sont terminées et les travaux de construction commencent cet automne 2024. Le lieu est ouvert pour tous ceux qui voudront visiter les travaux de construction de la maison témoin
7. Est-ce que vous vendez les terrains viabilisés non construits?
40 à 60 parcelles non construites sont disponibles et en vente dans la cadre du programme immobilier Faubourg d’Ekali. La réservation se fait en ligne en cliquant sur l’onglet situé à page accueil Réservation en ligne ou envoyant un courriel à info@faubourgekali.com ou en prenant un rendez-vous en ligne ou encore en vous rendant dans notre bureau à Yaoundé ou à Montréal au Canada. Un de nos agents commerciaux au Cameroun ou notre représentant à Montréal ou en Afrique de l’ouest vous contactera immédiatement.
8. Quelle est la durée de réalisation du programme ?
La durée prévisionnelle de réalisation de tout le programme immobilier est de 36 à 60 mois max. En principe, le programme est censé être livré et terminé au courant de 2028. Par ailleurs, le programme étant structuré en phases, la première phase de 35 – 40 logements sera livrée au bout de 24 mois, soit en 2026.
9. Quelles sont les modalités de paiements offerts?
Pour les maisons :
La vente est faite selon la formule de Vente en État Futur d’Achèvement (VEFA). Le client a trois modalités de paiement :
- Comptant ou cash
- Obtention d’un financement bancaire auprès d’une institution financière au Cameroun (Banque, Crédit Foncier du Cameroun, etc.)
- Paiement selon la progression de la construction de son logement.
Pour les terrains viabilisés :
Le client a trois modalités de paiement :
- Comptant ou cash
- Obtention d’un financement bancaire auprès d’une institution financière au Cameroun (Banque, Crédit Foncier du Cameroun, Etc.)
10. Quel est le processus ou les étapes de l’acquisition d’un logement ?
Pour les maisons : Achat par prêt immobilier
Selon la formule de Vente en État Futur d’Achèvement (VEFA), les étapes sont les suivantes :
- Choix d’un modèle de logement;
- Versement d’un acompte minimum de 5% du prix de vente, sans attribution d’un logement précis (pré- réservation);
- Porter l’acompte minimum à 10 % à 30% minimum du prix de vente (réservation);
- Choix d’un logement;
- Obtention du financement complémentaire (CFC, autres banques…). Si ATINA IMMOBILIER s’occupe de votre demande de financement, les frais de montage et de suivi des dossiers de 500 000 FCFA seront prélevés ou exigés lors du dépôt de votre dossier. Ces frais sont non remboursables même en cas de non obtention du financement.
- Versement du paiement ou du solde par les prêteurs (CFC, autres banques) selon le calendrier de construction et les encaissement établis;
- Réception du logement et délivrance du certificat de conformité;
- Remise des clés.
Pour les maisons : Achat comptant
Selon la formule de Vente en état futur d’achèvement (VEFA), les étapes sont les suivantes :
- Choix d’un modèle de logement;
- Versement d’un acompte minimum de 10% du prix de vente, sans attribution d’un logement précis (pré- réservation).
- Porter l’acompte à 50% minimum du prix de vente (réservation) dans un délai de 3 mois maximum
- Début de la construction du logement choisi.
- Versement du solde en 12 mensualités maximum selon le calendrier de construction et les encaissement établis.
- Réception du logement et délivrance du certificat de conformité;
- Remise des clés.
11. Quel est le processus de l’acquisition d’un terrain non viabilisé ?
Pour les terrains : Achat par prêt immobilier
Les étapes sont les suivantes :
- Choix d’un lot;
- Versement d’un acompte minimum de 5% du prix de vente, sans attribution d’un lot précis (pré- réservation);
- Porter l’acompte à minimum 10 % du prix de vente (réservation);
- Obtention du financement complémentaire (CFC, autres banques…). Si ATINA IMMOBILIER s’occupe de votre demande de financement, les frais de montage et de suivi des dossiers de 500 000 FCFA seront prélevés ou exigés lors du dépôt de votre dossier. Ces frais sont non remboursables même en cas de non obtention du financement.
- Versement du paiement ou du solde par le prêteur (CFC, autres banques);
- Remise du dossier technique;
- Délivrance du titre foncier sur son lot.
Pour les terrains : Achat comptant ou cash
Les étapes sont les suivantes :
- Choix d’un lot;
- Versement d’un acompte minimum de 5% du prix de vente, sans attribution d’un lot précis (pré-réservation);
- Porter l’acompte à minimum 10 % du prix de vente (réservation);
- Versement du paiement ou du solde dans un délai de 3 mois maximum;
- Remise du dossier technique dans un délai de 1 à 2 mois maximum;
- Délivrance du titre foncier sur son lot.
12. Quels sont les éléments de constitution du dossier de demande de financement auprès du Crédit foncier du Cameroun (CFC) ?
I.1 Pièces relatives à l’emprunteur
- Demande manuscrite datée et signée, adressée à Monsieur le Directeur Général du CFC indiquant le type, le montant, la durée et le différé du prêt sollicité, les coordonnées du notaire choisi, le numéro de téléphone, l’adresse mail et les adresses professionnelle et de résidence de l’emprunteur;
- Justificatif de paiement des frais d’instructions (voir grille tarifaire);
- Fiche d’informations client dûment signée;
- Deux photos 4×4;
- Photocopie de la Carte Nationale; d’Identité ou du Passeport Camerounais en cours de validité, assortie de 3; spécimens de signature au recto
- Photocopie de la carte de séjour du pays de résidence en cours de validité;
- Photocopie de la carte de sécurité sociale (numéro de sécurité sociale en cours validité;
- Bureau de crédit ou fiche de crédit faisant ressortir le scoring/notation du client pour le cas du CANADA et des USA;
- Renseignements bancaires indiquant le taux d’endettement du client, pour le cas de l’EUROPE;
- Avis de cotisation ou d’imposition de l’année précédente
- Note d’analyse de la viabilité de l’employeur à produire par le représentant;
- Attestation d’emploi indiquant la date d’embauche, la présence effective travail et le type de contrat (CDD ou CDI);
- Bulletins de paie des trois (03) derniers mois;
- Relevé du compte bancaire domiciliataire du salaire (les 06 derniers mois);
- Relevé d’Identité Bancaire;
- Photocopie de l’acte de mariage ou de tout autre document équivalent (le cas échéant) et de la pièce d’identité du conjoint Déclaration sur l’honneur de célibat, le cas échéant;
- Curriculum vitae de l’emprunteur;
- Attestation d’immatriculation et Numéro d’ldentifiant Unique (NIU);
I.2 Pièces relatives au projet
- Contrat de réservation de logement auprès du promoteur du Faubourg d’Ékali.
13. Quelle sera la qualité des finitions intérieures des logements dans le programme Faubourg Ekali?
Il est vrai que l’un des principaux problèmes dans le logement au Cameroun est la qualité des finitions intérieures.
Pour pallier ce problème, le promoteur du Faubourg d’Ékali a négocié et signé des accords avec des fournisseurs de premier choix au Maroc, en Europe et en Amérique du Nord. De plus, nous avons signé un accord avec une entreprise marocaine et un spécialiste des finitions intérieures canadien d’origine Camerounaise. Cette équipe ira au Cameroun pour superviser la pose et les travaux de finitions intérieurs. Les camerounais seront associés à ce travail pour permettre un transfert d’expérience.
14. Quelles sont les garanties offertes aux acquéreurs en cas de retard de livraison du projet?
Dans le cas de non livraison à l’échéance prévue dans le contrat de vente sur plan signé par devant le notaire, et après une période de grâce fixé sur le contrat, le promoteur sera dans l’obligation de payer à ses clients des pénalités de retard.
15. Qui va s'occuper de la gestion du Faubourg Ekali dès que le le programme sera terminé?
Une fois la cité livrée, la loi prévoit que sa gestion soit confiée à un administrateur de bien immobilier (syndic de copropriété); ATINA IMMOBILIER a développé tout un département Gestion immobilière qui sera chargée d’assurer l’exécution des dispositions du règlement de copropriété et de lotissement des délibérations de l’assemblée, de veiller à la tranquillité dans les Faubourg d’Ékali, d’assurer d’une façon moderne et professionnelle l’entretien nécessaire des parties communes et veiller à l’hygiène et à la sécurité au sein de nos programmes. ATINA IMMOBILIER va ensuite former et laisser les copropriétaires des Faubourg d’Ékali organiser leur syndicat afin d’assurer la gestion.
16. Comment les camerounais de la diaspora qui souhaitent acquérir une maison pourront s'assurer que leur mise de fonds et leur argent ne sera pas détourné ou dilapidé par le promoteur du Faubourg Ékali?
Pour ceux de la diaspora qui financent directement avec leur fonds propres leur acquisition sans solliciter le financement d’une banque, le programme Faubourg d’Ékali sera réalisé en mode Vente en État Futur d’achèvement (VEFA).
Pour ce faire, une mise de fonds d’au moins 10 % du prix hors taxes du logement devra être déposé ou viré directement dans le compte du promoteur pour être en mesure de réserver un lot sur lequel sera construit votre logement. En contrepartie de ce montant, un contrat de réservation sera remis au réservataire. Le dossier technique sera monté immédiatement au nom du réservataire. Le reste des paiements se feront directement dans le compte in trust d’un avocat en Amérique du Nord et en Europe, pour ceux qui résident au Canada. Ce système permettra à l’acquéreur d’autoriser l’avocat à procéder au déblocage progressif des fonds en fonction du calendrier de construction préalablement établi. Bref, le paiement se fera après la réalisation de chaque lot ou étape de la construction.
17. Comment les camerounais résident au Cameroun qui souhaitent acquérir une maison pourront s'assurer que leur mise de fonds et leur argent ne sera pas détourné ou dilapidé par le promoteur du Faubourg Ékali?
Pour les camerounais résident au Cameroun qui financent directement avec leur fonds propres l’acquisition de leur maison sans solliciter le financement d’une banque, le programme Faubourg d’Ékali sera réalisé en mode Vente en État Futur d’achèvement (VEFA).
Pour ce faire, une mise de fonds d’au moins 10 % du prix hors taxes du logement devra être déposé ou viré directement dans le compte bancaire au Cameroun du promoteur pour être en mesure de réserver un lot sur lequel sera construit votre logement. En contrepartie de ce montant, un contrat de réservation sera remis au réservataire. Le dossier technique sera monté au nom du réservataire dès qu’il aura atteint un versement de 60%. Le reste des paiements se feront directement dans le compte séquestre dans une banque au Cameroun (Ce compte est en cours de constitution). Ce système permettra à l’acquéreur de procéder à l’autorisation du déblocage progressif des fonds en fonction du calendrier de construction préalablement établi. Bref, le paiement se fera après la réalisation de chaque lot ou étape de la construction.
18. Avez-vous d'autres projets en cours au Cameroun?
Nos futurs projets sont : La Résidence KABETA située à BASTOS- Yaoundé à côté de l’ambassade de Corée. Ce sera une belle copropriété verticale de 2 immeubles avec 16 appartements par immeuble dotée d’une piscine, une salle de sport, des salles de réunions, et bien d’autres commodités pour agrémenter la vie des futurs acquéreurs et locataires. Le faubourg Ekali Bloc 2 sur une superficie de 8 ha situé non loin du premier programme Faubourg Ekali I. Le faubourg Ekali Bloc 3 encore appelé les Rives de la Mefou situé à 500 mètres du premier programme. La commercialisation des lots à Ebolowa et à Ngaoundéré. La construction d’un hôpital privé appelé Hôpital d’Ekali avec les partenaires privés. La construction d’un groupe scolaire et secondaire à EKALI. Pour en savoir plus, il faut se rendre sur le site internet de Atina immobilier (www.atinaimmo.com).
